株式会社ハマ不動産 > 物件一覧 > 松浜東町二丁目 貸作業所(元食品加工工場) > 物件詳細


※1. 仲介手数料は仮の価格となりますので、実際の価格に関してはお気軽にお問い合わせ下さい。
※2. 1か月を30日として計算しています。
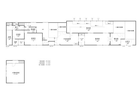
| 所在地 | 新潟県新潟市北区松浜東町2丁目4-20 | ||
|---|---|---|---|
| 交通 | |||
| 坪数(面積) | 94.75坪(313.23㎡) | ||
| 賃料/坪単価 | 25万円/0.26万円 | 管理費・共益費 | - |
| 敷金/礼金/保証金 | 3ヶ月/1ヶ月/- | 償却/敷引 | -/- |
| 更新料 | - | 権利金/雑費 | -/- |
| 造作譲渡金 | - | 駐車場/月額料金 | 有(5台)/0円 |
| 保険加入/料金 | 有/- | 保険名/保険期間 | -/- |
| 保証人代行義務/利用料 | 必加入/ 賃料1か月分 | 保証会社 | ジェイリース |
| 保証会社詳細 | - | 向き | - |
| 築年月(築年数) | 1992年 11月 (築33年) | 契約期間 | 3年 |
| 種別/構造 | 店舗/木造 | 用途地域 | 第一種住居 |
| 部屋/所在階/階建 | -/-/2階建 | 総戸数 | - |
| 現況/引渡時期 | 空家/即時 | 取引態様 | 専任媒介 |
| 物件番号 | 98466707 | 取引条件の有効期限 | 2026年02月13日 |
| 設備条件 |
|
||
| 取扱会社 |
|
||
| QRコード |
このQRコードを読み取ることで、スマホでも物件情報を確認できます。 |
||
※地図上に表示される物件の位置は付近住所に所在することを表すものであり、実際の物件所在地とは異なる場合がございます。
新潟市北区の町名から探す
新潟市北区にある駅から探す