株式会社ハマ不動産 > 物件一覧 > 新潟市北区新元島町 売家 > 物件詳細










(※元利均等方式 金利5.00%まで ※返済年数5~50年まで入力できます)
(※ボーナスは年2回で計算しています。1000万円まで入力できます)
(※物件購入時、その他諸費用が発生する場合がございます)
| 所在地 | 新潟県新潟市北区新元島町4000番地45 | ||
|---|---|---|---|
| 交通 | |||
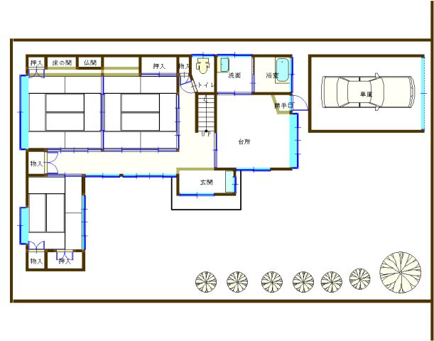
| 間取り/詳細 | 5DK/ | 建物面積(坪数) | 119.48㎡(36.14坪) |
| 価格 | 700万円 | ||
| 駐車場/月額料金 | -/- | ||
| 土地の敷金/保証金 | -/- | 借地料/借地期間 | -/- |
| 土地権利 | 所有権 | 土地面積(坪数) | 254.25㎡(76.91坪) |
| 傾斜地部分面積 | - | 路地状敷地 | - |
| 私道負担面積/セットバック | -/無 | 高圧線下面積 | - |
| 地目/地勢 | 宅地/平坦 | 接道状況 | 一方(南西 公道 6.0m 間口 12.5m) |
| 建ぺい率/容積率 | 60%/200% | 用途地域 | 第一種中高層住居専用 |
| 都市計画 | 市街化区域 | 種別/構造 | 中古一戸建/木造 |
| 階建 | 2階建 | 築年月(築年数) | 1979年 11月 (築46年) |
| 総区画数/販売区画数 | -/- | 向き | - |
| 現況 | 空家 | その他の法令上の制限 | 景観法/航空法 |
| 取引態様/引渡時期 | 一般媒介/相談 | 建築確認番号 | - |
| 物件番号 | 95163251 | 取引条件の有効期限 | 2026年02月23日 |
| 設備条件 |
|
||
| 取扱会社 |
|
||
| QRコード |
このQRコードを読み取ることで、スマホでも物件情報を確認できます。 |
||
※地図上に表示される物件の位置は付近住所に所在することを表すものであり、実際の物件所在地とは異なる場合がございます。
新潟市北区新元島町 売家に関するこだわり条件から探す
新潟市北区新元島町 売家周辺の駅から探す